Centro Convegni Arredato
€3,500 / al mese
Affitto
99167110
ID Proprietà
720 m2
Superficie
3
Bagni
Descrizione
Udine Nord, laterale via Tavagnacco….Introvabile centro convegni all’interno del rinomato “Palazzo delle Professioni”. Disponibile sia per la locazione che per la vendita.
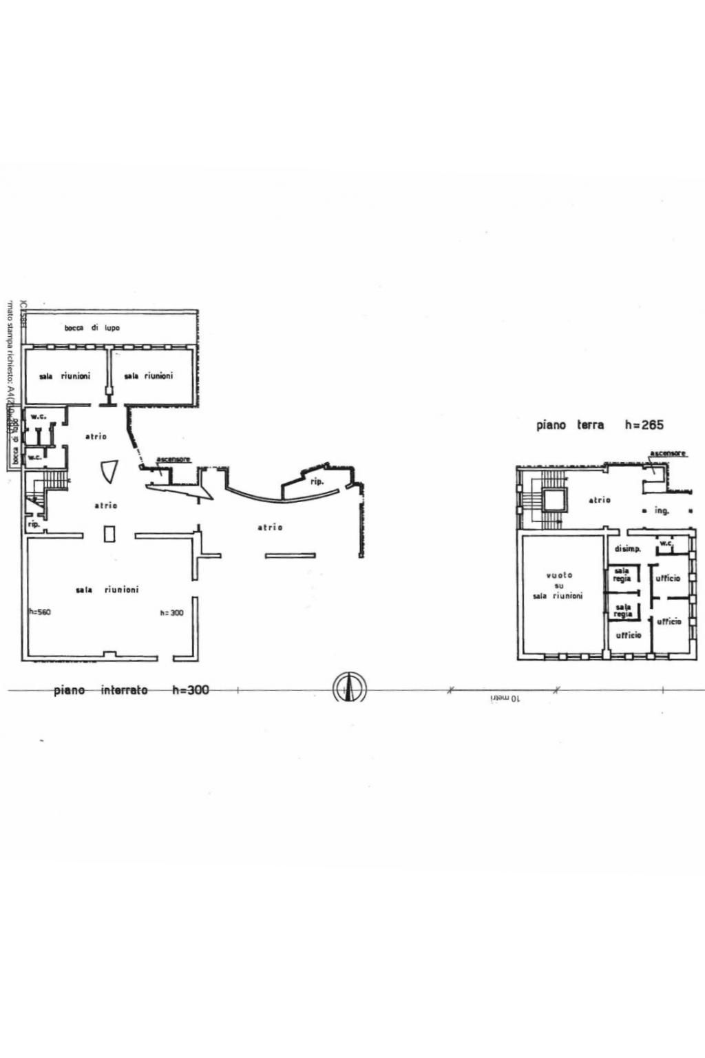
Ingresso con reception e atrio di rappresentanza, tre uffici, bagno e sala tecnica. Al piano sottostante raggiungibile anche tramite ascensore privato, abbiamo la sala convegni, i servizi, tre ampi atrii e due ulteriori sale riunioni.
Il centro si presenta con ingresso ed uscite d’emergenza indipendenti, accesso dal piano terra e dal piano interrato, ha delle ottime dimensioni, non troppo impegnative, è versatile, adatto a diverse attività.
Disponibile da subito, tenuto perfettamente quindi immediatamente operativo. Informatevi. Attestato di Prestazione Energetica in corso di rilascio.
Ingresso con reception e atrio di rappresentanza, tre uffici, bagno e sala tecnica. Al piano sottostante raggiungibile anche tramite ascensore privato, abbiamo la sala convegni, i servizi, tre ampi atrii e due ulteriori sale riunioni.
Il centro si presenta con ingresso ed uscite d’emergenza indipendenti, accesso dal piano terra e dal piano interrato, ha delle ottime dimensioni, non troppo impegnative, è versatile, adatto a diverse attività.
Disponibile da subito, tenuto perfettamente quindi immediatamente operativo. Informatevi. Attestato di Prestazione Energetica in corso di rilascio.
Indirizzo
Indirizzo:
Udine Ospedale Via Cjavecis
- Country: Italia
- Regione: Friuli Venezia Giulia
- Provincia: Udine
- Paese: Udine
- ID Proprietà 99167110
- Prezzo €3,500 / al mese
- Categria Proprietà Palazzo - Edificio
- Status Proprietà Affitto
- Bagni 3
- Anno di Costruzione 2000
- Superficie 720 m2
- Contratto Affitto
- Locali 5+ locali, 3 bagni - uno o più adatto a persone disabili
- Piano Piano terra, con accesso disabili
- Totale piani edificio 1 piano
- Posti auto 10 in parcheggio/garage comune
- Disponibilità Libero
- Stato Buono / Abitabile
- Riscaldamento Centralizzato, ad aria, alimentazione elettrica
- Climatizzatore Centralizzato, freddo/caldo
- Prestazione energetica del fabbricato Invernale "Normale" Estivo "Normale"
- Efficienza energetica G? 3,51 kWh/m² anno
